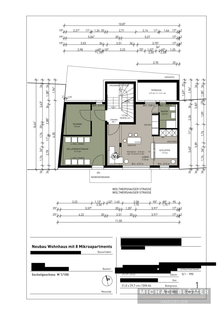
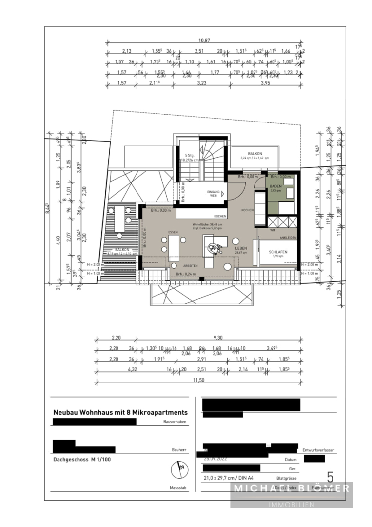
Zum Verkauf steht ein attraktives Baugrundstück auf Erbpacht, ideal für Ihr zukünftiges Wohnprojekt. Das geplante Projekt umfasst acht moderne Microapartments und ist bereits vollständig durchgeplant sowie vom Bauamt genehmigt. Aktuell befindet sich auf dem Grundstück ein Altbau, der im Rahmen der Baumaßnahme abgerissen werden muss. Diese Kaufgelegenheit ist besonders für Investoren und Bauherren interessant, die eine innovative Wohnform realisieren möchten.
Das Grundstück befindet sich in einer aufstrebenden Wohngegend, die durch eine gute Anbindung an öffentliche Verkehrsmittel und eine Nähe zu Einkaufsmöglichkeiten und Schulen überzeugt. Die Umgebung bietet eine hohe Lebensqualität und attraktive Freizeitmöglichkeiten, die das Wohngefühl erheblich bereichern.
Die Bundesregierung hat bis Ende des Jahres attraktive Förderungen für Bauobjekte wie dieses in Aussicht gestellt, was die Finanzierung Ihres Projekts besonders vorteilhaft gestalten kann.
Bei weiteren Fragen stehe ich Ihnen jederzeit gerne zur Verfügung. Nutzen Sie diese einmalige Gelegenheit, in eine zukunftssichere Immobilie zu investieren!


























